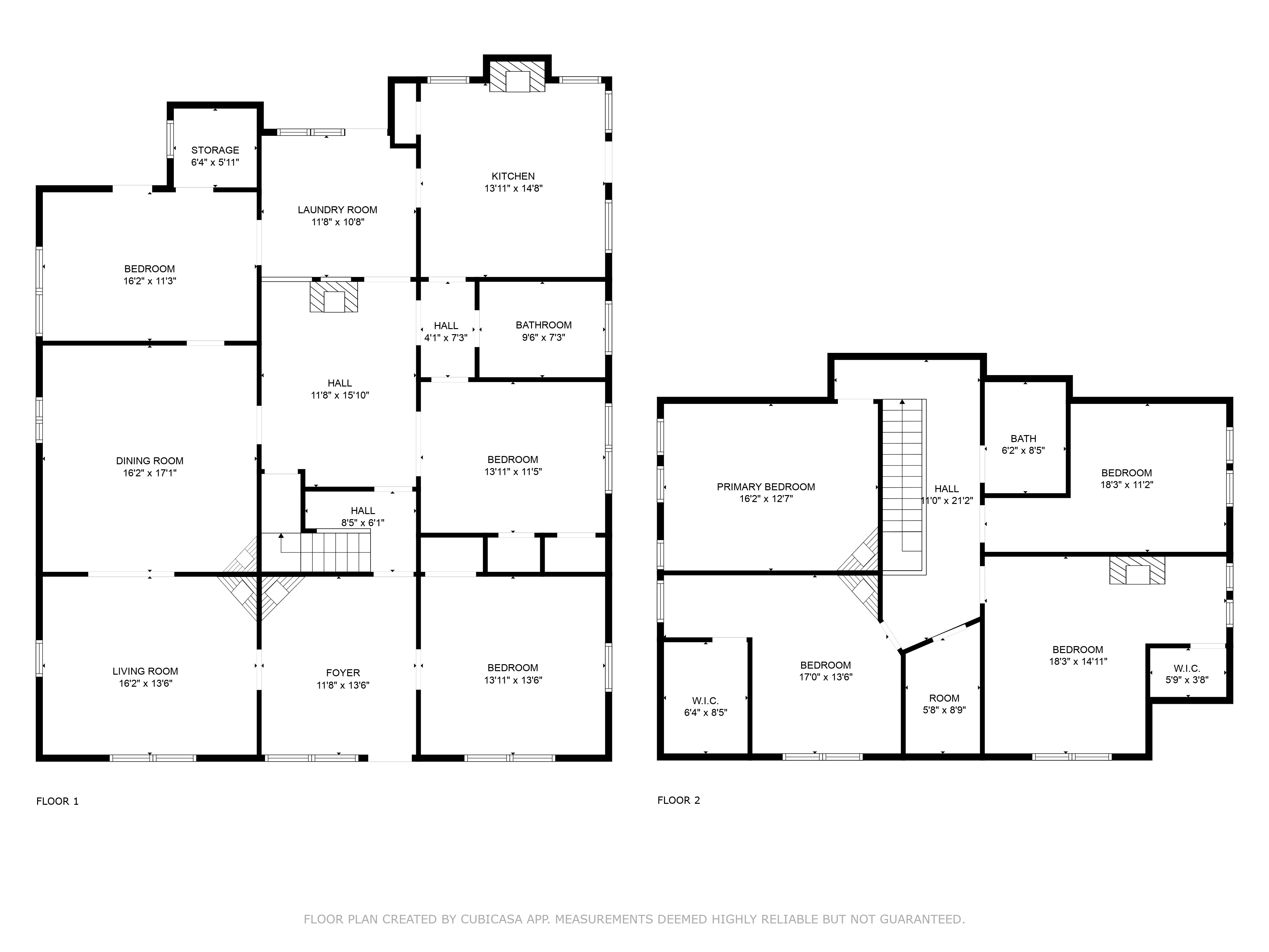
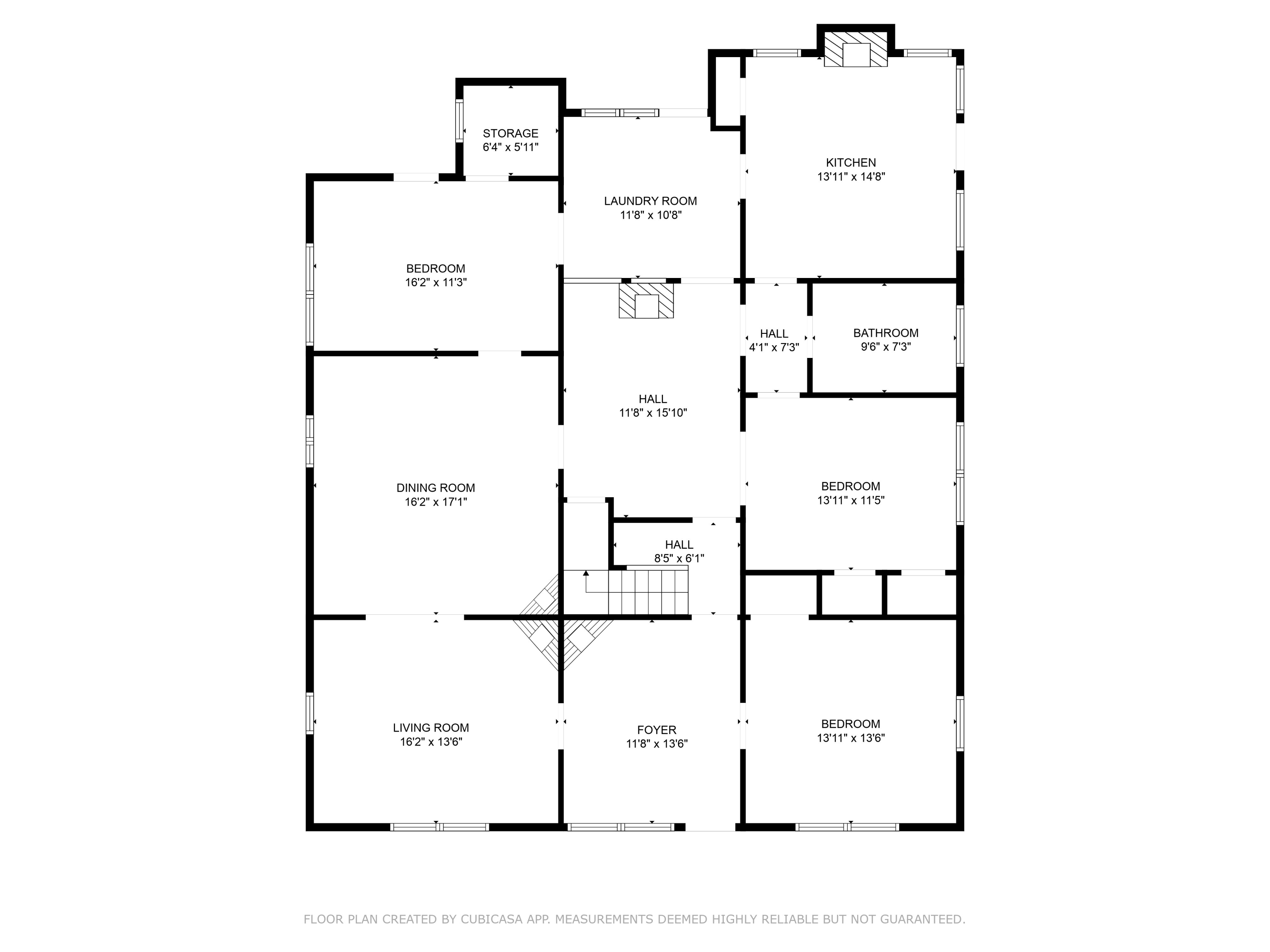
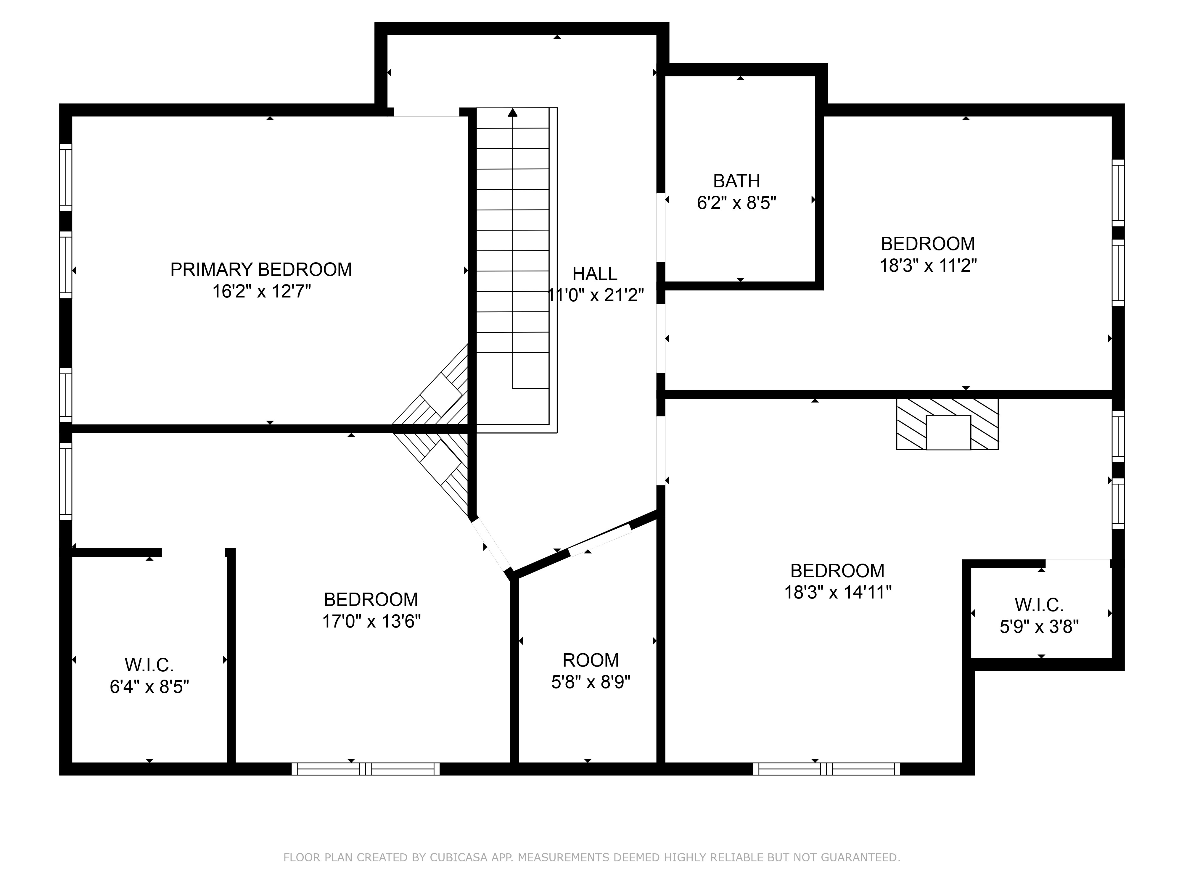
345 N. Oliver St. Elberton, GA 30635 - 7BR-2BA

345 N. Oliver St Elberton, GA 30635

The auction will start in __ days and __ hours

Start price: $10,000

Buyer's premium:

Description

Bid on this charming 7-bedroom, 2-bathroom Craftsman-style home, in the heart of Elberton, GA. Enjoy the expansive covered front porch. Situated on a spacious corner lot, with future commercial potential, this property blends historic charm with some of the renovations completed. This would be a good candidate to convert to multi-family, as it would easily make 3 – 2 BR apartments. This home still needs renovation work. Kitchen sub-flooring and plumbing has been replaced. The kitchen needs lower cabinets and appliances. Gas lines are in each room, but no heaters are present. Current heat is a wood burning stove. No air conditioning. Metal roof is approximately 5 years old. Hot water heater is 1 year old. Hardwood floors throughout most of the home. Most rooms will need repainting. New tile walk in shower. Bathroom, kitchen, and a couple other rooms need floor coverings. This home will not qualify for FHA financing. Owner/Broker. Key Features: 7 Bedrooms, 2 Bathrooms: Ample space for families, guests, or creative use. Craftsman Style: Classic architectural details with timeless appeal. Recent Renovations: Updated bathrooms featuring a luxurious tile walk-in shower. Newer metal roof for durability and low maintenance. Large Corner Lot: Offers flexibility and potential for future commercial development. Prime Location: Conveniently located in Elberton, close to local amenities and attractions. Perfect for those seeking a spacious, character-filled home with modern comforts and investment potential. Don’t miss this unique opportunity in Elberton’s thriving community! Final bid subject to seller approval. 5% Buyer’s premium will be added to final bid price. Bidder will be required to sign a purchase agreement, at the end of auction, and close on the property, within 30 days. 5% non-refundable earnest money is due at the end of auction. Pre-registered buyer’s brokers, will be protected. The law office of Bill Daughtry, is the preferred closing attorney. Property is being sold as-is, with no repairs made by the seller. Buyer shall conduct all due diligence prior to auction.

Secret Link